Appartement à vendre à Cannes (06400)
Appartement à vendre à Cannes (06400) - réf. : 1647_122
Prix de vente : 220 000 € FAI
Infos agence
IMMO 3 POINTS
1 rue ALBERTI
06000 Nice, Alpes Maritimes
- 0988437461
- i3p@immo3points.com
- Visiter le site de l'agence
IMMO 3 POINTS
1 rue ALBERTI
06000 Nice, Alpes Maritimes
Tél. : 0988437461 | i3p@immo3points.com | https://immo3points.com/fr/
Détails de l'offre - Réf. : 1647_122
Descriptif
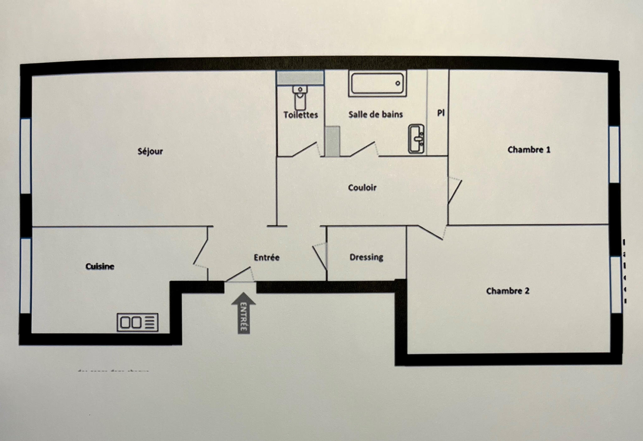
3 PIECES DERNIER ETAGE CROIX DES GARDES/RIOU
3 PIECES A RENOVER DANS UN SECTEUR RESIDENTIEL CALME, avec des transports et des commerces.
Au DERNIER ETAGE, Lumineux, avec une BELLE TERRASSE qui donne sur le séjour et la cuisine. La VUE est DEGAGEE. Un balcon côté chambre parfaitement au calme. Orientation Est-Ouest, TRAVERSANT.
DIstribution agréable depuis l'entrée avec un couloir desservant le wc indépendant, la salle de bain et les deux chambres.
Grande entrée avec grand dressing à intégrer au salon. Possibilité simple d'ouvrir la cuisine sur le salon pour une pièce à vivre moderne lumineuse et agréable.
Une première chambre avec placard intégré, une deuxième avec balcon et la possibilité de créer un placard sans perdre en surface (en prenant sur le placard de l'entrée)
faibles charges. Pas d'ascenceur.
Une place de parking extérieure dans la résidence et une cave en sous-sol sont compris dans le prix.
Les informations sur les risques auxquels ce bien est exposé sont disponibles sur le site Géorisques : www.georisques.gouv.fr
Localisation approximative
Caractéristiques
| Surface habitable | 56 m² |
| Surface jardin / cour | Sans |
| Nombre de pièces | 3 |
| Nombre de chambres | 2 |
| Nombre de salles de bains | 0 |
| Nombre de salles d'eau | 0 |
| Cuisine | |
| Chauffage | |
| Piscine | Non |
| Terrasse | Oui |
| Balcon(s) | 1 |
| Ascenseur | Non |
| Garage(s) | 0 |
Informations financières
| Prix de vente honoraires TTC inclus (les honoraires d'agence seront intégralement à la charge du vendeur) | 220 000 € FAI |
Consommation énergétique
3 PIECES DERNIER ETAGE CROIX DES GARDES/RIOU
3 PIECES A RENOVER DANS UN SECTEUR RESIDENTIEL CALME, avec des transports et des commerces.
Au DERNIER ETAGE, Lumineux, avec une BELLE TERRASSE qui donne sur le séjour et la cuisine. La VUE est DEGAGEE. Un balcon côté chambre parfaitement au calme. Orientation Est-Ouest, TRAVERSANT.
DIstribution agréable depuis l'entrée avec un couloir desservant le wc indépendant, la salle de bain et les deux chambres.
Grande entrée avec grand dressing à intégrer au salon. Possibilité simple d'ouvrir la cuisine sur le salon pour une pièce à vivre moderne lumineuse et agréable.
Une première chambre avec placard intégré, une deuxième avec balcon et la possibilité de créer un placard sans perdre en surface (en prenant sur le placard de l'entrée)
faibles charges. Pas d'ascenceur.
Une place de parking extérieure dans la résidence et une cave en sous-sol sont compris dans le prix.
Les informations sur les risques auxquels ce bien est exposé sont disponibles sur le site Géorisques : www.georisques.gouv.fr
| Surface habitable | 56 m² |
| Surface jardin / cour | Sans |
| Nombre de pièces | 3 |
| Nombre de chambres | 2 |
| Nombre de salles de bains | 0 |
| Nombre de salles d'eau | 0 |
| Cuisine | |
| Chauffage | |
| Piscine | Non |
| Terrasse | Oui |
| Balcon(s) | 1 |
| Ascenseur | Non |
| Garage(s) | 0 |

Accueil
Nouvelle recherche