Terrain à vendre à Vitry-sur-Seine (94400)
Terrain à vendre à Vitry-sur-Seine (94400) - réf. : ALVTE80000317
Prix de vente : 349 000 € FAI
Infos agence
Cécile Darmon
95880 Enghien-les-Bains, Val d\'oise
- 0687105451
- cdarmon@commilvousplaira.fr
Cécile Darmon
95880 Enghien-les-Bains, Val d\'oise
Tél. : 0687105451 | cdarmon@commilvousplaira.fr |
Détails de l'offre - Réf. : ALVTE80000317
Descriptif
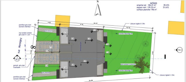
TERRAIN à BâTIR VITRY SUR SEINE 270M2
Aquila immobilier 06 27 26 88 88 vous propose un Terrain à Viitry sur Seine 94400 avec permis de construire. 5 minutes de la porte de Choisy et la ville de Paris
A proximité de Villejuif, le Kremlin-Bicêtre dans une zône de pavillons: priximité des hopitaux , des écoles, de la Mairie etc...
Le terrain est desservi par le Tramway No 9 et le métro No15 qui sera très prochainement en service.
Possibilité de construire deux maisons jumlées avec 104 M2 chacune, ou es appartements R+2 en investissement.
Permis de construire en cours de validité, des plans disponibles sur demande et à titre indicatif*
*LES PLANS SONT A TITRE INDICATIF.
Affaire à saisir
CONTACT AQUILA IMMOBILIER.
La présente annonce immobilière a été rédigée sous la responsabilité éditoriale de l'agence Aquila immobilier, (RCS 88086585200011) du Tribunal de Commerce de SAINT ETIENNE. Les honoraires sont à la charge du vendeur. Retrouver toutes nos annonces sur aquila-immo.com - Annonce rédigée et publiée PAR AQUILA I MMOBILIER - Barème: https://www.aquila-immo.com/i/redac/honoraires
Rendez-vous sur notre site internet: www.aquila-immo.comTrès belle visite et à bientôt
Localisation approximative
Caractéristiques
| Surface | 270 m² |
Informations financières
| Prix de vente honoraires TTC inclus (les honoraires d'agence seront intégralement à la charge du vendeur) | 349 000 € FAI |
TERRAIN à BâTIR VITRY SUR SEINE 270M2
Aquila immobilier 06 27 26 88 88 vous propose un Terrain à Viitry sur Seine 94400 avec permis de construire. 5 minutes de la porte de Choisy et la ville de Paris
A proximité de Villejuif, le Kremlin-Bicêtre dans une zône de pavillons: priximité des hopitaux , des écoles, de la Mairie etc...
Le terrain est desservi par le Tramway No 9 et le métro No15 qui sera très prochainement en service.
Possibilité de construire deux maisons jumlées avec 104 M2 chacune, ou es appartements R+2 en investissement.
Permis de construire en cours de validité, des plans disponibles sur demande et à titre indicatif*
*LES PLANS SONT A TITRE INDICATIF.
Affaire à saisir
CONTACT AQUILA IMMOBILIER.
La présente annonce immobilière a été rédigée sous la responsabilité éditoriale de l'agence Aquila immobilier, (RCS 88086585200011) du Tribunal de Commerce de SAINT ETIENNE. Les honoraires sont à la charge du vendeur. Retrouver toutes nos annonces sur aquila-immo.com - Annonce rédigée et publiée PAR AQUILA I MMOBILIER - Barème: https://www.aquila-immo.com/i/redac/honoraires
Rendez-vous sur notre site internet: www.aquila-immo.comTrès belle visite et à bientôt
| Surface | 270 m² |

Accueil
Nouvelle recherche